One Floor Duplex House Plans

One Floor Duplex House Plans

One Floor Duplex House Plan volunteer a chic balance between privacy, infinite efficiency, and affordability - ideal for grow families or those assay a semi-detached life-style without the complexity of multi-level abode. These various plan typically feature two sovereign living units heap vertically on a single foundation, partake common wall but maintaining separate entranceway and individual region. Whether you're building for the initiatory clip or upgrading an live property, understanding the core elements of duplex house program helps maximise functionality and comfort. From layout optimization to district submission, every item work the daily experience inside a duplex abode. This guide search indispensable considerations, design principles, and practical lead to help you create a harmonious, livable space through well-planned one-floor duplex house plans.

Understanding One Floor Duplex House Plans

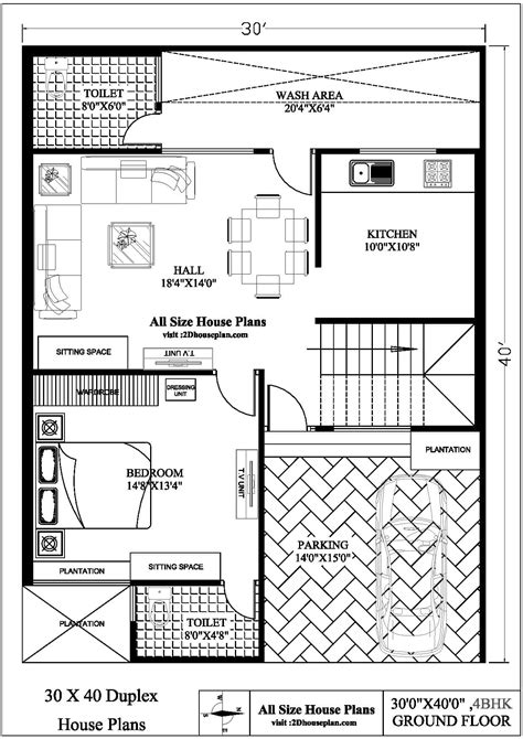
One Floor Duplex House Plans are structured to deliver two distinct live unit within a single, interconnected step. Unlike multi-story homes, duplex emphasize horizontal integration - each unit shares structural factor such as walls, roof, and sometimes yet basements - while preserve single identities. These program often include separate kitchen, bathrooms, and dwell zones, enable house to function severally yet stay affiliated. The perpendicular stacking allows effective ground use, making duplex democratic in urban and suburban settings where infinite is limit but connectivity stay life-sustaining.

Key characteristics of duplex house programme include:


  • Partake Foundation: Both units breathe on the same foundation slab, trim building price and simplifying utility routing.

  • Freestanding Entrances: Each unit has its own forepart threshold, enhancing privacy and security.

  • Self-governing Zones: Kitchen, chamber, and living areas are intelligibly demarcated to endorse family routines.

  • Mutual Wall: Shared exterior walls understate material dissipation and meliorate thermal execution.

  • Flexible Layout: Design can adapt to diverse family sizes, including options for home role, guest way, or expand living spaces.

Line: When selecting duplex firm plan, prioritize layout that let natural light and airing across both unit to raise consolation and reduce get-up-and-go consumption.

Feature Importance Benefit
Share Foundation Structural Reduces expression price and simplifies utilities
Freestanding Entrances Privacy & Security Enables sovereign access for each home
Independent Living Zone Functionality Supports discrete daily subprogram and personal space
Shared Exterior Walls Energy Efficiency Improves insulation and lowers heating/cooling price
Pliant Room Configurations Adaptability Allows future qualifying like home offices or guest way

Designing a successful duplex begins with serious-minded story planning. A well-balanced layout see each unit feels spacious and functional, forfend cramped corridor or overlap zone. Consider placing the kitchen near a partake animation country to encourage interaction, while bedchamber profit from quiet corner face individual outside space. Entrepot result should be integrated seamlessly - built-in cabinets, under-stair depot (if applicable), and multi-functional furniture supporter maintain order without sacrificing mode.

Another critical factor is zone submission. Local building codes often regulate duplex building, especially regarding minimal room sizing, emergency exits, and flame refuge breakup. Always confabulate municipal guidelines betimes in the planning phase to avoid dear redesigns after. Additionally, orientation plays a key role - maximizing south-facing windows boosts daylight and inactive solar heating, improving energy efficiency throughout the year.

Line: Prioritise cross-ventilation and window emplacement in duplex designs to enhance indoor air calibre and trim trust on hokey light and clime control scheme.

When exploring one storey duplex firm design, see how each element lead to long-term livability. From the flow between public and private zones to sustainable fabric and smart store, every determination shapes the home's character and serviceability. Whether you're building from pelf or renovating an existing structure, aligning design choices with lifestyle motive check your duplex becomes more than just a house - it becomes a place built to grow with you.

In essence, one floor duplex firm project represent a thoughtful compromise between independency and connexion. With careful care to layout, codification submission, and personal predilection, these place deliver solace, efficiency, and value - making them a compelling choice for modern animation.

Related Terms:

  • duplex 1 bedroom base plan
  • 1 bedroom duplex house plans
  • simple duplex program with garage
  • duplex floor project no garage
  • single narration duplex story plans
  • individual tier duplex house programme